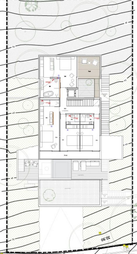
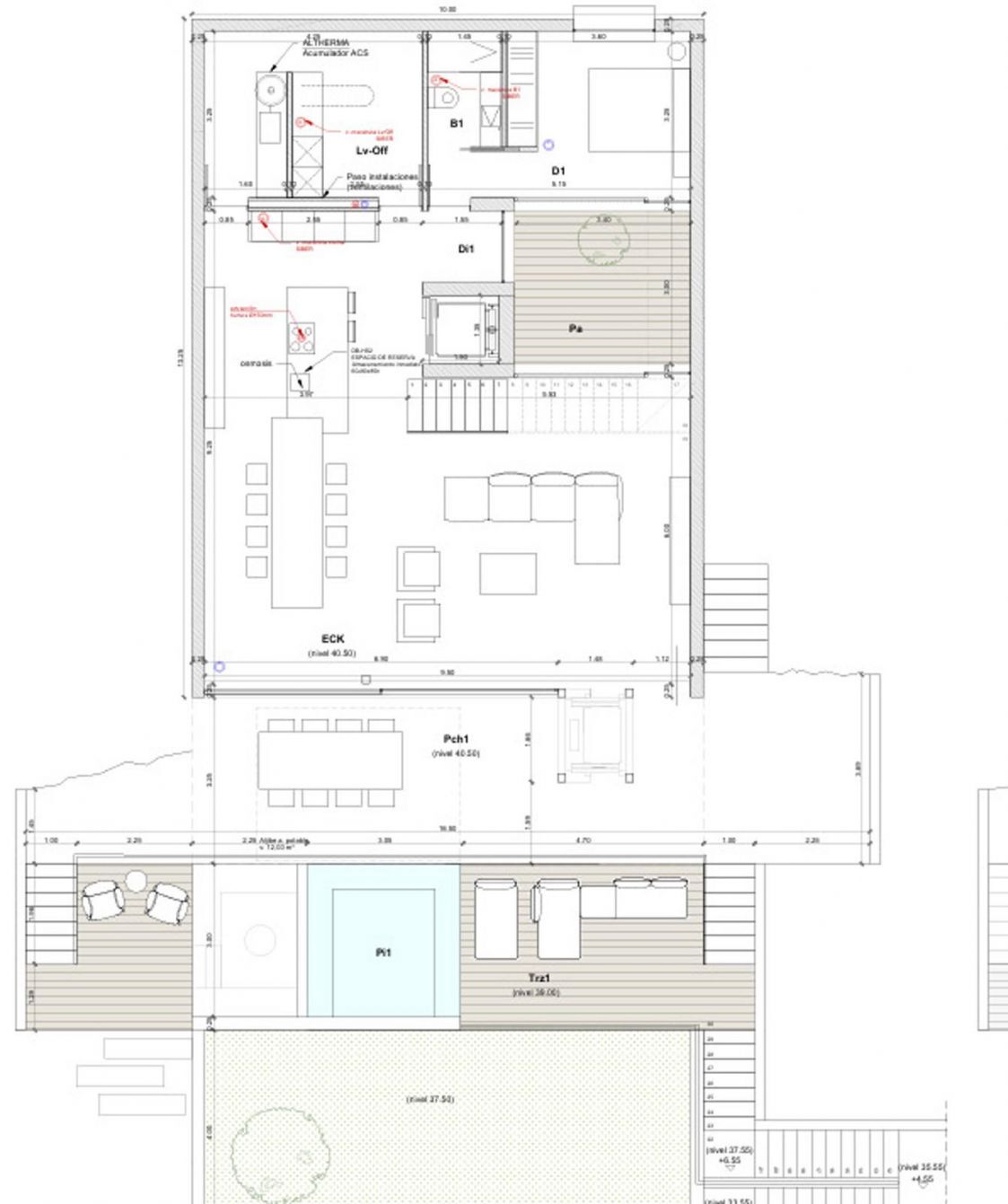
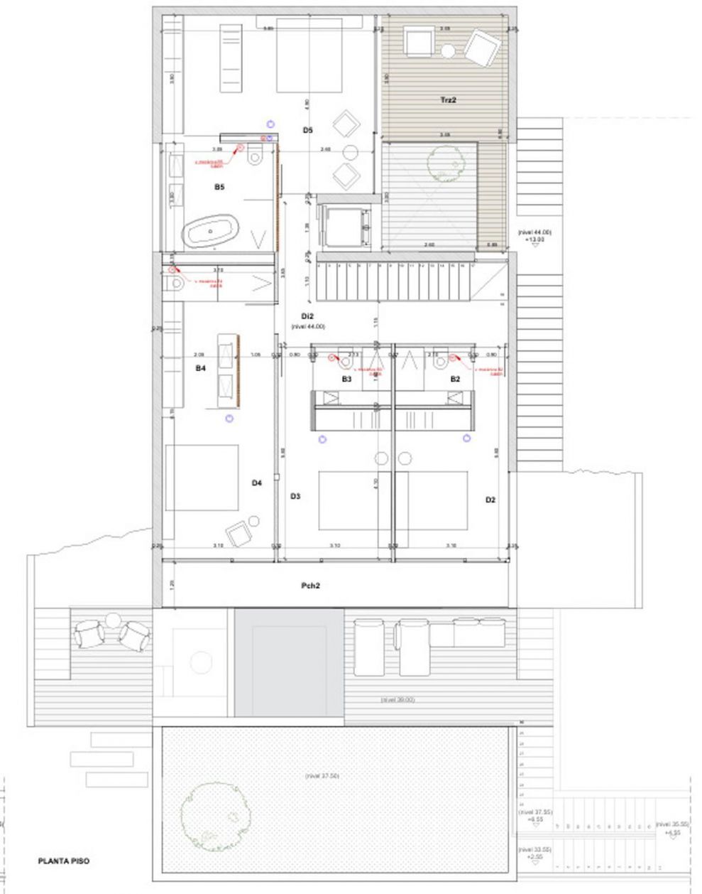
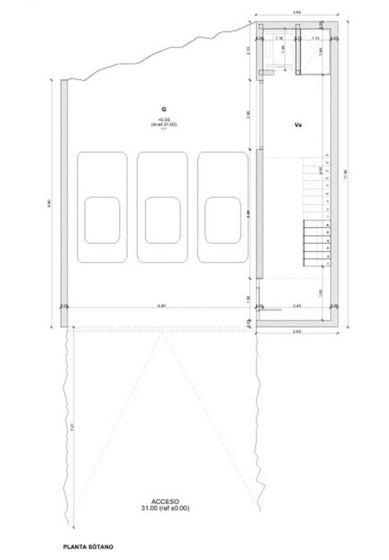
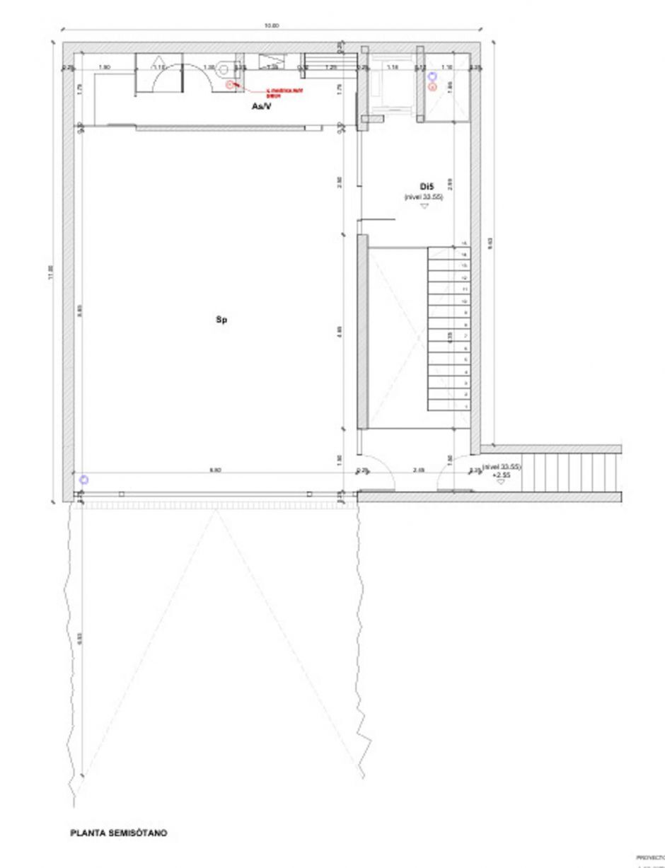
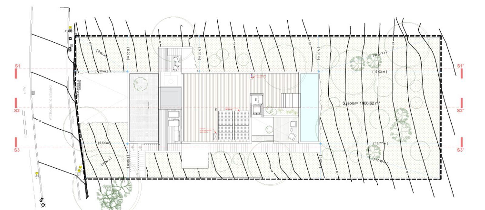
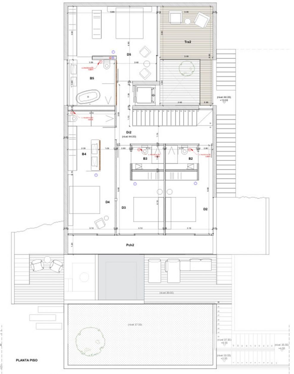
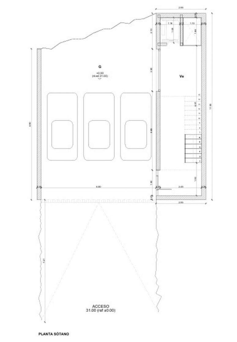
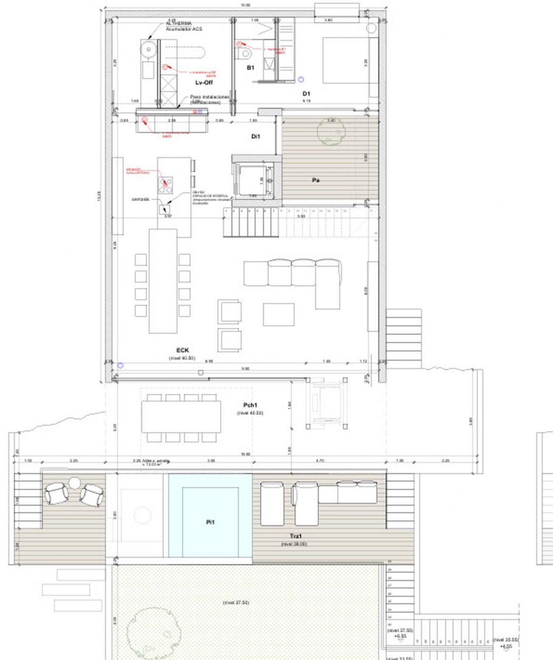
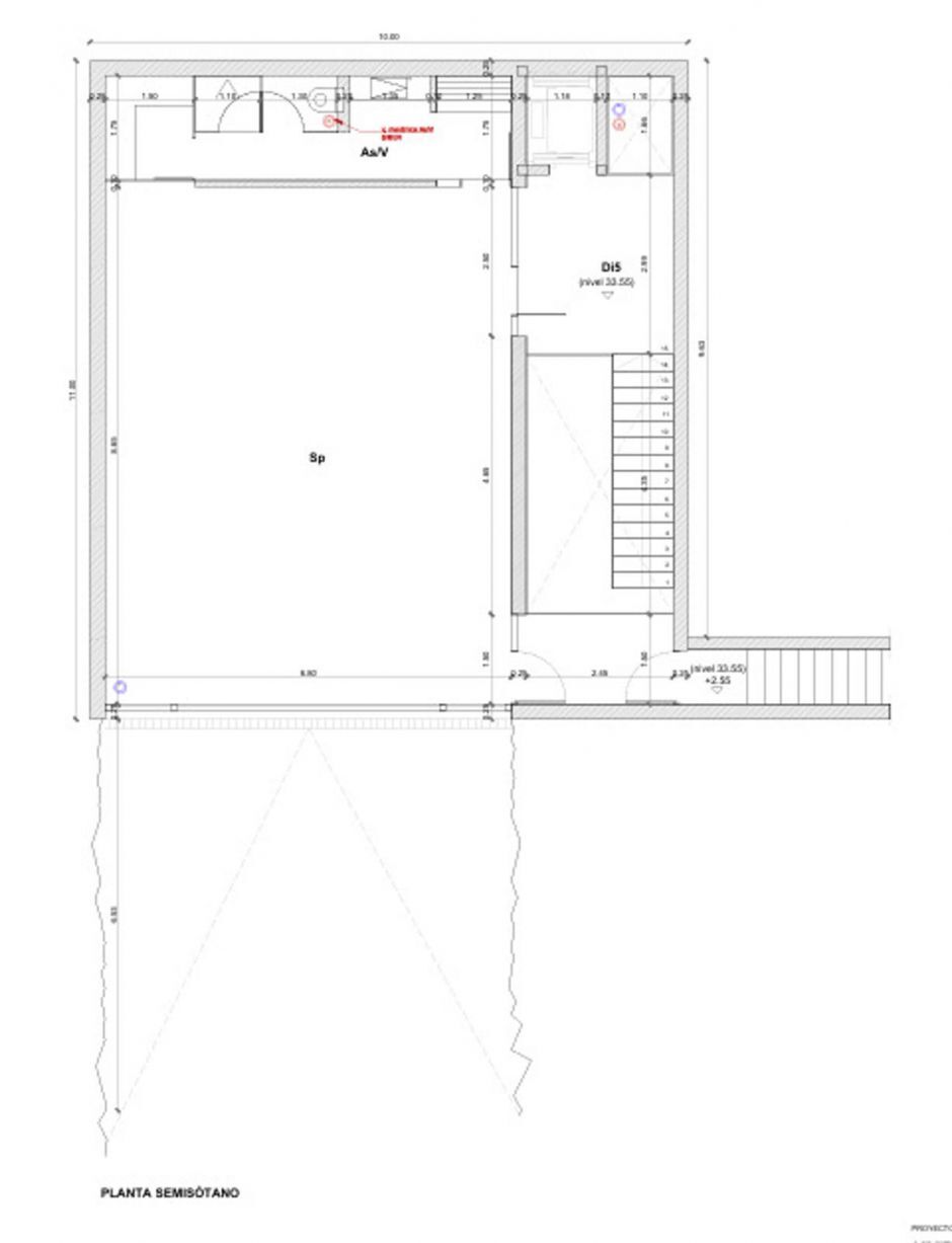
En el Puerto de Pollença, en una de las áreas residenciales más prestigiosas de la isla, se ofrece esta parcela urbana de 1.006 m² con un enclave verdaderamente privilegiado. Desde su posición elevada se disfrutan espectaculares vistas a la Sierra de Tramuntana y a la Bahía de Pollença, un marco incomparable donde el mar y la montaña se funden en perfecta armonía. La propiedad incluye el proyecto básico para la construcción de una elegante vivienda de 370 m², diseñada con acabados de alto nivel y concebida para aprovechar al máximo la luz natural y las vistas panorámicas. El diseño al que no le falta detalle con 4 habitaciones ,zona de parquing, ascensor y un amplio salón luminoso ,se completa con amplias terrazas exteriores y dos piscinas privadas, que realzan el confort y el estilo de vida mediterráneo. Ubicada en una zona de lujo gotmar, rodeada de exclusivos chalets de alto standing, esta parcela representa una oportunidad única de inversión para quienes buscan exclusividad, privacidad y un entorno inmejorable. Una pieza de alto valor en el mercado inmobiliario de Mallorca, perfecta tanto para residencia privada como para inversión segura en una de las localizaciones más codiciadas de la isla. In Puerto de Pollença, in one of the island's most prestigious residential areas, this 1,006 m² urban plot is offered in a truly privileged location. From its elevated position, you can enjoy spectacular views of the Tramuntana Mountains and the Bay of Pollença, an incomparable setting where the sea and mountains blend in perfect harmony. The property includes the basic project for the construction of an elegant 370 m² home, designed with high-quality finishes and conceived to maximize natural light and panoramic views. The meticulous design features four bedrooms, a parking area, an elevator, and a spacious, bright living room. It is completed with large outdoor terraces and two private pools, enhancing the comfort and Mediterranean lifestyle. Located in a luxurious area of ??Gotmar, surrounded by exclusive high-end villas, this plot represents a unique investment opportunity for those seeking exclusivity, privacy, and an unbeatable setting. A high-value asset in Mallorca's real estate market, it's perfect for both a private residence and a secure investment in one of the island's most coveted locations.

















