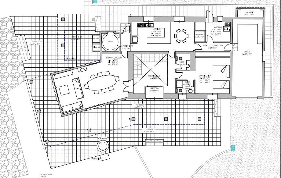
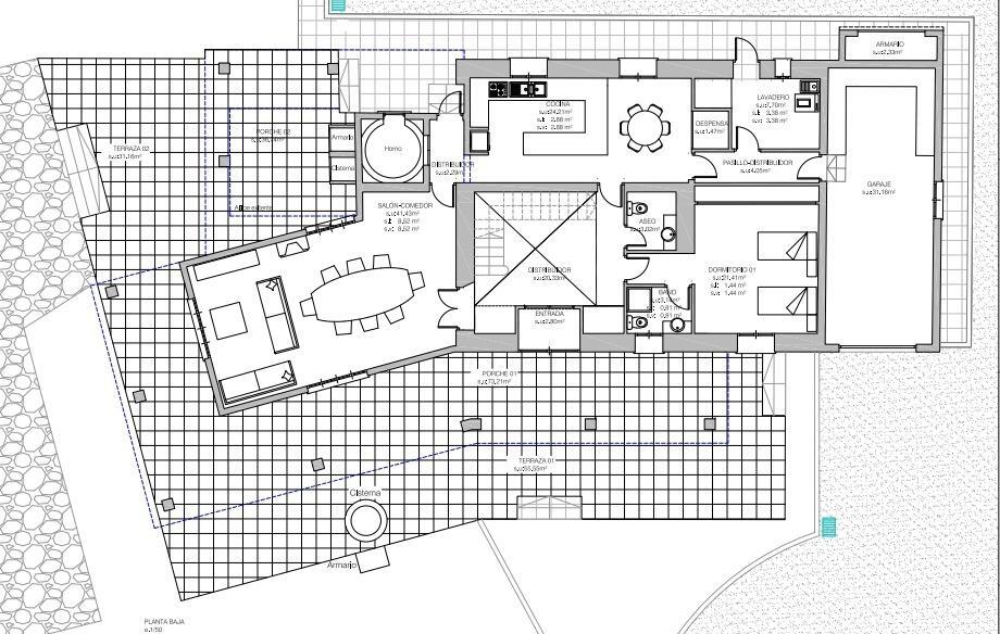
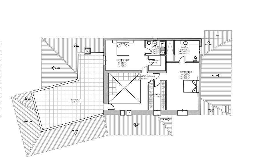
Exclusivo chalet rústico de lujo construido eficientemente con gusto , y con las mejores calidades rusticas en entorno natural privilegiado, a las afueras de Inca En una de las zonas más tranquilas y demandadas de Inca, rodeado de naturaleza y con excelente conexión a todos los servicios, se encuentra este espectacular chalet de estilo rústico tradicional balear, construido con una atención exquisita al detalle y materiales de primera calidad. La vivienda, completamente forrada de piedra caliza de 25 cm de grosor y acabado de junta fina lo que aporta un aislamiento genial , transmite desde el primer momento el carácter auténtico de la arquitectura mallorquina. Destacan sus amplios porches con vigas de norte macizo, creando espacios exteriores interminables, pensados para disfrutar del entorno y del clima mediterráneo durante todo el año. Sobre una parcela de mas de 6.600 m², la propiedad ofrece unos exteriores sencillamente excepcionales: jardines naturales perfectamente integrados,zona de frutales por si eres amante de la naturaleza y tener un huerto , una impresionante piscina de unos 50 metros, y una zona de ocio única con horno de leña tradicional, recuperado de una antigua panadería de la localidad, que aporta un valor histórico y singular difícil de encontrar. La vivienda cuenta con 360 m² construidos y totalmente habitables, distribuidos de forma funcional y elegante. Dispone de 3 amplias habitaciones dobles , todas ellas de gran tamaño , con vestidor propio y baño en suite, una de ellas situada en planta baja, ideal como dormitorio principal o de invitados, y las otras dos en planta superior. El corazón de la casa pasando por su gran entrada a doble altura con muchísimo carácter con techo de vigas es un salón precioso y lleno de luz, que conecta directamente con una cocina de estilo americano, equipada y con encimera de mármol blanco Macael y mobiliario de norte, combinando tradición, diseño y comodidad. Toda la vivienda refleja un cuidado diseño rústico mallorquín: * **Puertas interiores y exteriores de teca maciza** * **Ventanas de teca con climalit y persianas también de teca** * **Suelos de gres**, resistentes y atemporales Las instalaciones se encuentran en perfectísimo estado, contando con calefacción central por radiadores en todas las estancias, además de un aseo independiente en planta baja que complementa la distribución. La finca dispone de agua de pozo propio además de depósitos de acumulación de unos 30.000lts. y suministro eléctrico de GESA, y fue construida legalmente, con proyecto y final de obra en 2002, ofreciendo total tranquilidad y seguridad jurídica. Una propiedad única, con carácter, historia y calidad constructiva, pensada para quienes buscan lujo estilo rustico , privacidad y autenticidad mallorquina, a pocos minutos de Inca y de todas las conexiones principales.


























































